
Yさま(@ysb_freeman)です。
「コープさっぽろ すながわ店」が
2026年8月23日(日)オープンを計画しています。
現「コープさっぽろ 砂川店」の
新築移転。
※「計画」なので変動する可能性はあります
いろいろ情報を収集してみました。
よろしければ最後までお付き合い下さい。
コープさっぽろ すながわ店
計画概要
※「計画」なので変動する可能性はあります
※特に新設日(=オープン日)は変動する可能性大です
名称:コープさっぽろ すながわ店
所在地:北海道砂川市西3条北7丁目1の内
店舗設置者:生活協同組合コープさっぽろ
小売業を行う者:
生活協同組合コープさっぽろ
テナント1
テナント2
テナント3
※詳細は後述
店舗面積:5,449平方メートル
駐車場台数:298台
駐輪場台数:60台
営業時間:
開店時間 午前7時
閉店時間 午後9時50分
駐車場出入口数:
出入口 3箇所
新設日:2026年(令和8年)8月23日
コープさっぽろ すながわ店
テナント
店舗面積合計:5,449.058平方メートル
生活協同組合コープさっぽろ
店舗面積:2,169.695平方メートル
主たる販売品目:
食料品全般
家庭用消耗品
その他
開店時間:午前7時00分
閉店時間:午後9時50分
テナント1
店舗面積:1,071.551平方メートル
主たる販売品目:
日用消耗品
雑貨
その他
開店時間:午前7時00分
閉店時間:午後9時50分
テナント2
店舗面積:994.273平方メートル
主たる販売品目:
日用消耗品
雑貨
その他
開店時間:午前7時00分
閉店時間:午後9時50分
テナント3
店舗面積:1,036.337平方メートル
主たる販売品目:
化粧品
その他
開店時間:午前7時00分
閉店時間:午後9時50分
小売業者以外の事業者
事業面積:6.735平方メートル
主たる販売品目:
ATM
開店時間:-
閉店時間:-
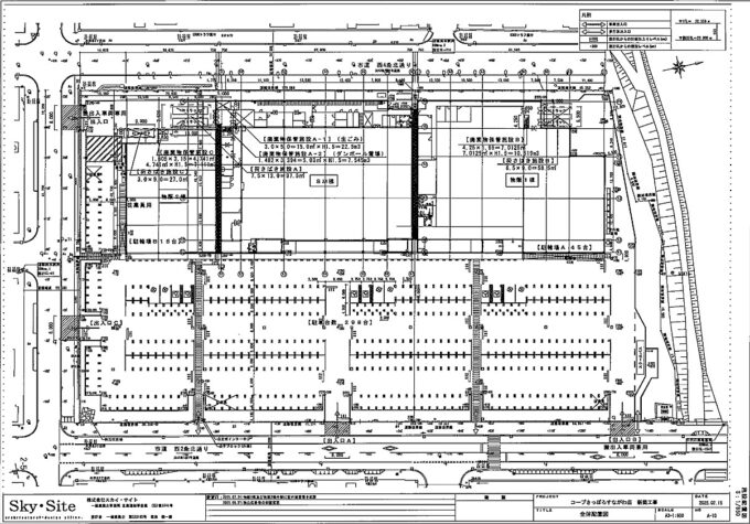
コープさっぽろ すながわ店
施設配置図

コープさっぽろ すながわ店
場所と交通アクセス
ペンケスナ川に近接。
「千代の橋」至近。
「砂川市立中央小学校」跡地を含むエリア。
現「コープさっぽろ 砂川店」から
距離約220メートル
徒歩3分くらい。
最寄駅は
JR函館本線
砂川駅で
距離約750メートル
徒歩9~10分くらい。
バスならば、、、
北海道中央バス
「北6丁目」
「北光園入口」
バス停留所あたりが徒歩圏。
ではあるものの、、、
本数が少なめなので
利用する際は
よーく確認するべし。

